Barkstraat 20, ZAANDAM - RE/MAX Royal
Barkstraat 20

Barkstraat 20

ZAANDAM

verkocht

Ook uw woning of bedrijfspand succesvol verkopen? Neem dan contactmet ons op

Gratis waardebepaling

Omschrijving

Barkstraat 20, 1503 TM ZAANDAM

Een goed onderhouden eengezinswoning met 5 kamers waarvan 4 slaapkamers, een zonnige voortuin en een ruime achtertuin en een berging. Gelegen in een aangename, kindvriendelijke buurt met alle nodige voorzieningen in de nabijheid.

Deze charmante woning ligt in een rustige straat in de kindvriendelijke buurt Peldersveld. Op korte afstand bevindt zich het bruisende centrum, met een overvloed aan winkels, restaurants en culturele voorzieningen. Binnen handbereik ligt een klein winkelcentrum met diverse supermarkten, winkels, een tandartspraktijk en enkele eetgelegenheden. Voorzieningen zoals kinderopvang en scholen liggen op loopafstand of zijn gemakkelijk per fiets bereikbaar. Het Darwinpark ligt op een steenworp afstand, terwijl de sportfaciliteiten van Zaandam goed bereikbaar zijn met de fiets. Een bushalte bevindt zich op enkele minuten loopafstand, terwijl het NS-station binnen tien minuten fietsen te bereiken is. Met de auto zijn de snelwegen A7 richting Purmerend en Hoorn, en de A8 met toegang tot de ring A10 richting Amsterdam, binnen enkele minuten te bereiken.

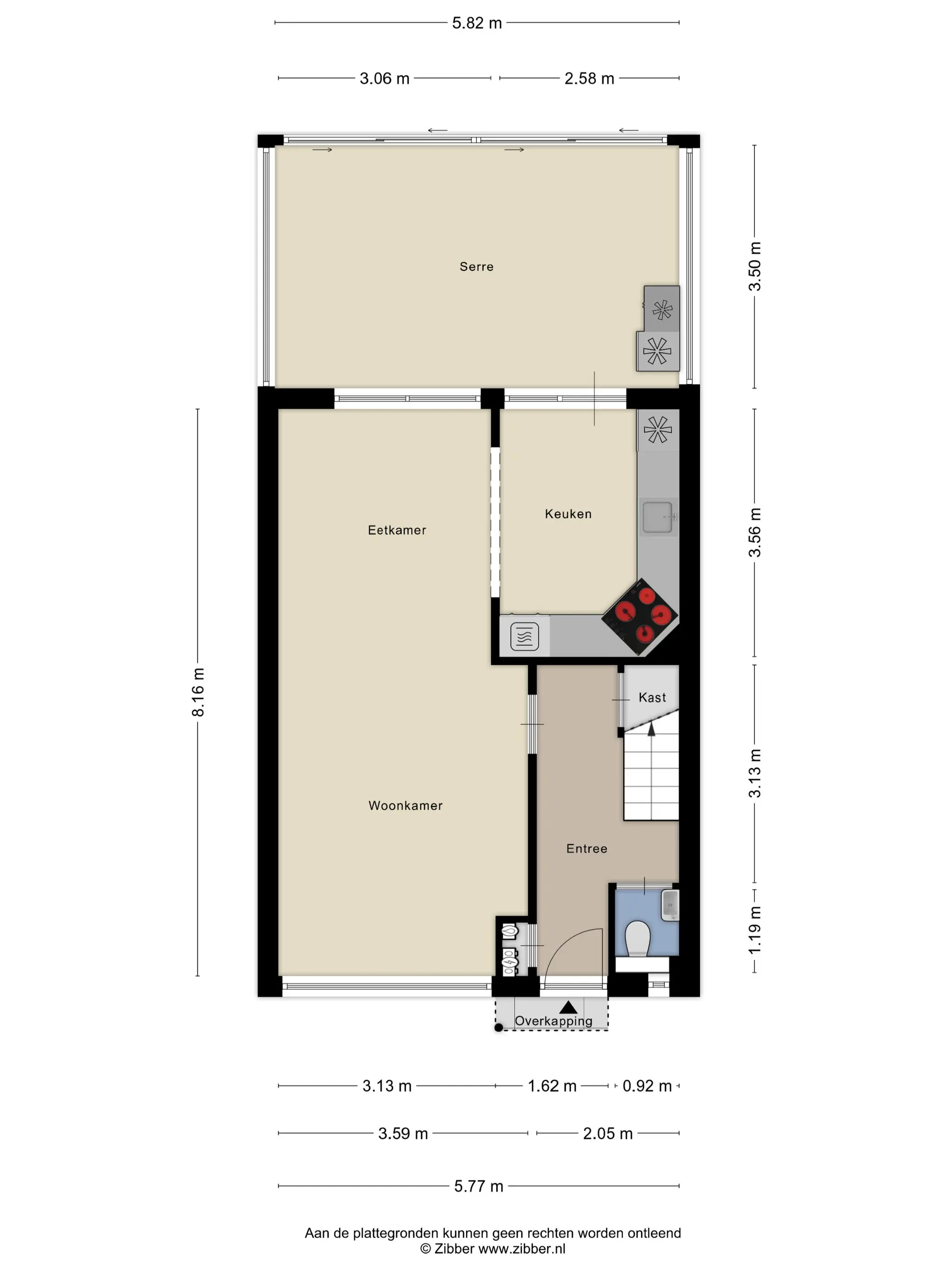
Indeling

Begane grond:
Een ruime, voortuin leidt naar de overkapte voordeur. Binnen vinden we een entree met meterkast, en toilet. De woonkamer heeft grote raampartijen aan voor- en achterzijde, en grenst aan een moderne witte keuken met diverse inbouwapparatuur. Deze keuken is voorzien van diverse inbouwapparatuur zoals: 4 pits inductie kookplaat met afzuiging, oven, magnetron, en een koelkast.

Eerste verdieping:
De vaste trap leidt naar drie slaapkamers en een moderne badkamer. De slaapkamers zijn royal en hebben grote ramen wat voor veel lichtinval zorgt. De moderne, praktisch uitgevoerde badkamer is voorzien van een ‘zwevend’ toilet, wastafel, wastafelmeubel en spiegel en een heerlijke douche. Een heerlijke ruimte om de dag fris te starten of om ’s avonds ontspannen af te sluiten.

Tweede verdieping:
Via een vaste trap bereiken we de overloop voorzien van een wasruimte met veel bergruimte en toegang tot de vierde slaapkamer

Tuin:
De woning heeft een fijne serre waar u het hele jaar door gebruik van kan maken, een betegelde, voor- en achtertuin, met een stenen berging en achterom. Parkeren kan rond de woning.
Lees meer

Kenmerken

Overdracht

Status
verkocht
Aanvaarding
in overleg

Bouw

Soort woning
woonhuis
Soort woonhuis
eengezinswoning
Type woonhuis
tussenwoning
Aantal woonlagen
3
Bouwjaar
1971
Onderhoud binnen
redelijk_tot_goed
Onderhoud buiten
redelijk_tot_goed
Voorzieningen
tv kabel, natuurlijke ventilatie
Isolatie
volledig geisoleerd, hr glas

Energie

Energielabel
C
Verwarming
cv ketel
Warm water
cv ketel
C.V.-ketel
combi-ketel, eigendom

Oppervlakten en inhoud

Woonoppervlakte
116 m²
Perceeloppervlakte
157 m²
Inhoud
409 m³
Bergruimte oppervlakte
9 m²
Buitenruimte oppervlakte
21 m²

Indeling

Aantal kamers
5

Buitenruimte

Ligging
aan rustige weg, in woonwijk
Tuin
achtertuin met een oppervlakte van 72 m² en is gelegen op het noordwesten

Garage / Schuur / Berging

Garage
geen garage
Parkeergelegenheid
openbaar parkeren
Schuur/berging
vrijstaand steen

Foto's

Plattegronden

Locatie

Downloads

Vraag een bezichtiging aan of neem contact met ons op